Offre spéciale

- 3 000€ sur vos frais de notaire

BOURGENAY maison de plain-pied de 4 chambres avec deux garages

Alliance parfaite entre élégance architecturale et confort absolu, cette villa de plain-pied incarne l’art de vivre contemporain.
Avec plus de 220 m² habitables, elle offre un salon majestueux de 60 m², une cuisine hautement équipée de 25 m², 4 suites spacieuses, un dressing indépendant, un bureau privé et 3 pièces d’eau raffinées. Chaque détail a été pensé pour conjuguer luxe, fonctionnalité et lumière naturelle. Son garage double de 75 m², ses prestations premium et son plan entièrement personnalisable en font une propriété rare, à la hauteur des plus grandes exigences.

Une maison prestigieuse, contemporaine et entièrement personnalisable, pour un mode de vie d’exception !

225 m2

4 ch

3 salles de bain

2 garages

Nous contacter pour cette maison

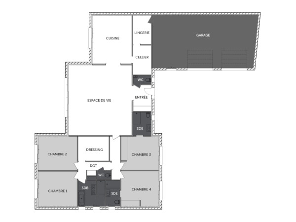
Plan(s) de la maison BOURGENAY

Plan (maison 102)

Les + de la maison BOURGENAY

Mais au fait on parle, on parle, mais avez-vous pensé
à commencer votre projet ?

Visites virtuelles 360°

Découvrez nos visites virtuelles 360° HD et explorez l’intérieur de nos maisons modernes. Naviguez de pièce en pièce, appréciez les volumes, les aménagements et les finitions de chaque espace. Une expérience immersive qui vous permet d’imaginer votre future maison neuve, depuis chez vous.

Toutes les visites virtuelles
Visites virtuelles 360°
LDV2101_BOURGENAY_Arriere.jpg

Cette maison vous intéresse ?

Pour estimer le coût de construction de ce projet de maison, plus de renseignements ou prendre rendez-vous, remplissez le formulaire ci-dessous

Les champs marqués(*) sont obligatoires.