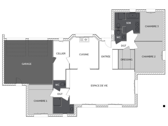
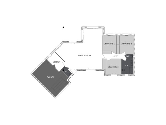
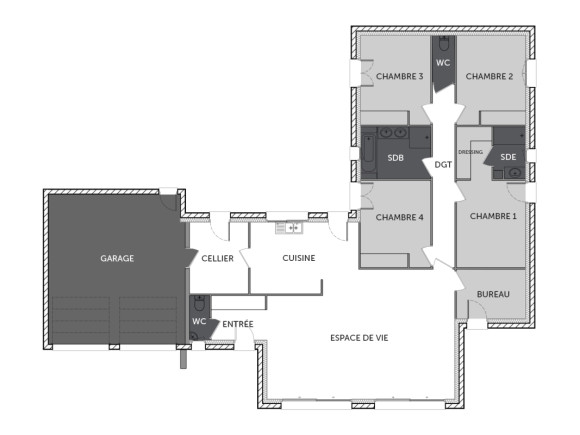
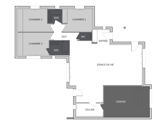
Nos plans de maison à télécharger gratuitement

Vous avez le projet de faire construire une maison ? La construction d'une maison implique d'acheter en même temps le terrain qui accueillera votre futur foyer. C'est pourquoi Logis de Vendée vous propose un outil personnalisé d'offres de maison et de terrain à acquérir. Grâce à cet outil, vous pouvez mieux préparer votre achat et vous projeter dans votre nouvel habitat.

61 plans de maison correspondent à votre recherche

vos filtres

Notre accompagnement pour la recherche de votre terrain et la construction de votre maison individuelle

Logis de Vendée vous permet de trouver votre bonheur en foction de nombreux critères de recherche : votre localité, votre superficie recherchée, votre budget... Envie d'un grand jardin ? De plusieurs chambres pour accueillir toute votre famille ? La recherche de Maison est simple pour accéder directement à une sélection d'offres correspondant à vos critères.

Vous visualisez clairement le prix du terrain ainsi que le prix de la maison. Les conseillers de Logis de Vendée vous accompagnent ensuite pour vous aider tout au long de votre projet.

Un plan de maison gratuit, la première étape de votre projet immobilier

À Challans comme à La Roche-sur-Yon, le département vendéen offre de nombreuses opportunités pour donner vie au plan de maison que vous avez sélectionné. Vous avez une idée précise ou vous vous laissez encore porter par vos idées, alors laissez-vous inspirer par la sélection de plans de maisons vendéennes gratuits que Logis de Vendée a imaginé pour vous.

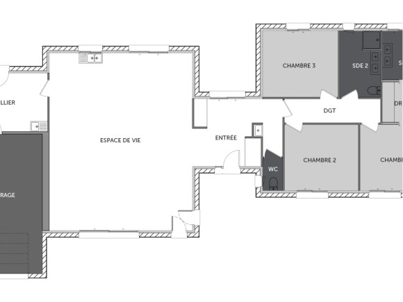
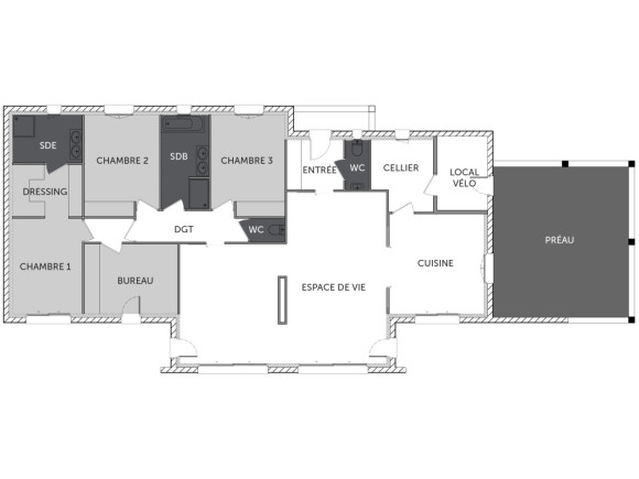
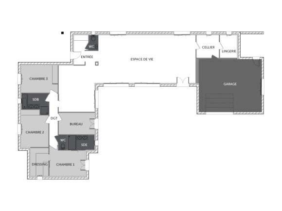
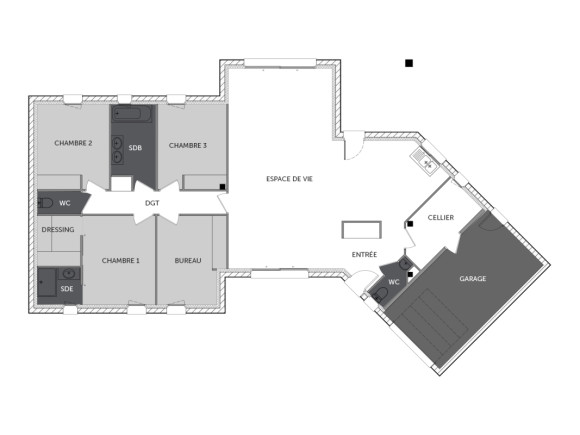
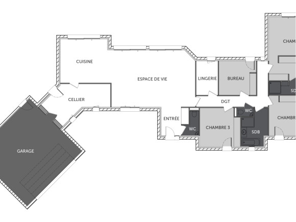
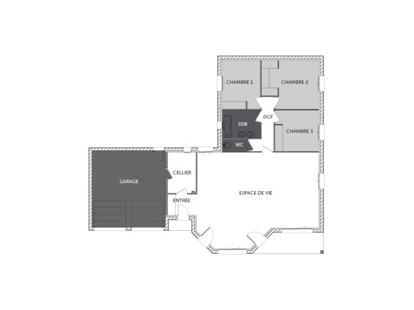
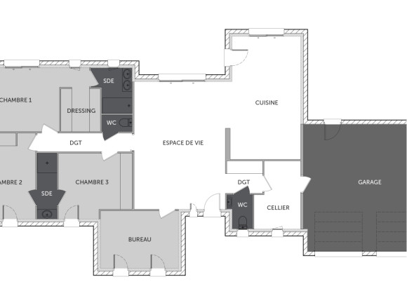
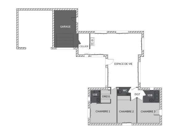
Des maisons stylées et caractéristiques de la Vendée avec des plans de maisons vendéennes ou des envies plus contemporaines avec des plans de maison répondant aux préférences de chacun, comme par exemple avec un vaste toit-terrasse.

Dans tous les cas, Logis de Vendée vous conseille et vous guide dans ce long processus. Une fois le plan de maison vendéenne choisi et votre terrain à bâtir identifié, Logis de Vendée vous garantira de prendre en charge la supervision du chantier de construction. Nous disposons ainsi d’un vaste réseau d’artisans qualifiés et reconnus, nous assurant de vous garantir une construction conforme au plan de maison gratuit que vous avez choisi.


Ce plan de maison vous inspire ?

Pour débuter votre projet, inspirez-vous de nos plans de maison en téléchargement.

Les champs marqués(*) sont obligatoires.