Offre spéciale

- 3 000€ sur vos frais de notaire

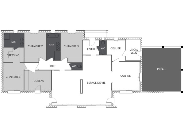
SAINTE FLAIVE maison de plain-pied de 3 chambres sans garage

Ce grand plain-pied aux traits contemporains de plus de 148 m² habitables, tourné vers le jardin, vous invite au calme et à la méditation, La grande cuisine vous permettra de vous livrer aux joies des arts culinaires et le salon/séjour vous séduira par son volume et sa luminosité. Côté nuit, un bureau ou chambre d'amis, deux chambres, une salle de bains avec baignoire et double vasque, une belle suite parentale avec dressing et salle d'eau. Les pièces annexes ne sont pas en reste : un double préau abritera vos véhicules en hiver et un local à vélo a également été pensé ! Pour vous assurer un confort de vie et conformément à la RE2025, nous avons choisi un mode de chauffage par PAC AIR/AIR. Prix hors décoration, frais de notaire, raccordements, dommage ouvrage.

149 m2

3 ch

2 salles de bain

Nous contacter pour cette maison

Plan(s) de la maison SAINTE FLAIVE

Plan (maison 218)

Les + de la maison SAINTE FLAIVE

Mais au fait on parle, on parle, mais avez-vous pensé
à commencer votre projet ?

Visites virtuelles 360°

Découvrez nos visites virtuelles 360° HD et explorez l’intérieur de nos maisons modernes. Naviguez de pièce en pièce, appréciez les volumes, les aménagements et les finitions de chaque espace. Une expérience immersive qui vous permet d’imaginer votre future maison neuve, depuis chez vous.

Toutes les visites virtuelles
Visites virtuelles 360°
Maison

Cette maison vous intéresse ?

Pour estimer le coût de construction de ce projet de maison, plus de renseignements ou prendre rendez-vous, remplissez le formulaire ci-dessous

Les champs marqués(*) sont obligatoires.