Offre spéciale

- 3 000€ sur vos frais de notaire

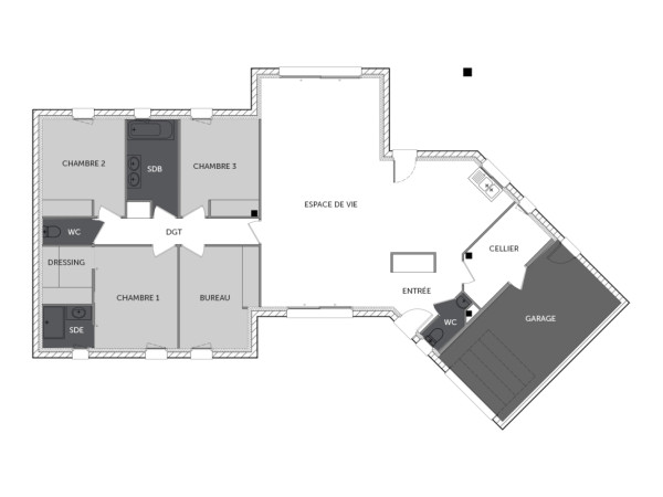
SAINT GILLES maison de plain-pied de 4 chambres avec un garage

Cette maison familiale de plain-pied a pour atout majeur son spacieux espace de vie d'une grande luminosité grâce à ses des baies vitrées, comprenant une cuisine ouverte donnant sur une partie rangement avec un grand garage et un cellier, ainsi qu'un WC séparé. L'espace nuit est doté d'une somptueuse suite parentale comportant une chambre spacieuse, un grand dressing et une salle d'eau, ainsi que de deux chambres confortables, une salle de bain, un WC séparé, et un bureau. Pour vous assurer un confort de vie et conformément à la RE2025, nous avons choisi un mode de chauffage par PAC AIR/AIR. Prix hors décoration, frais de notaire, raccordements, dommage ouvrage.

118 m2

4 ch

2 salles de bain

1 garage

Nous contacter pour cette maison

Plan(s) de la maison SAINT GILLES

Plan (maison 133)

Les + de la maison SAINT GILLES

Mais au fait on parle, on parle, mais avez-vous pensé
à commencer votre projet ?

Visites virtuelles 360°

Découvrez nos visites virtuelles 360° HD et explorez l’intérieur de nos maisons modernes. Naviguez de pièce en pièce, appréciez les volumes, les aménagements et les finitions de chaque espace. Une expérience immersive qui vous permet d’imaginer votre future maison neuve, depuis chez vous.

Toutes les visites virtuelles
Visites virtuelles 360°
ME1732LDV_SAINT GILLES_arriere.jpg

Cette maison vous intéresse ?

Pour estimer le coût de construction de ce projet de maison, plus de renseignements ou prendre rendez-vous, remplissez le formulaire ci-dessous

Les champs marqués(*) sont obligatoires.