Offre spéciale

- 3 000€ sur vos frais de notaire

VAIRE maison de plain-pied de 3 chambres avec deux garages

Une allure contemporaine pour une maison généreuse et lumineuse – 4 chambres, bureau et suite parentale

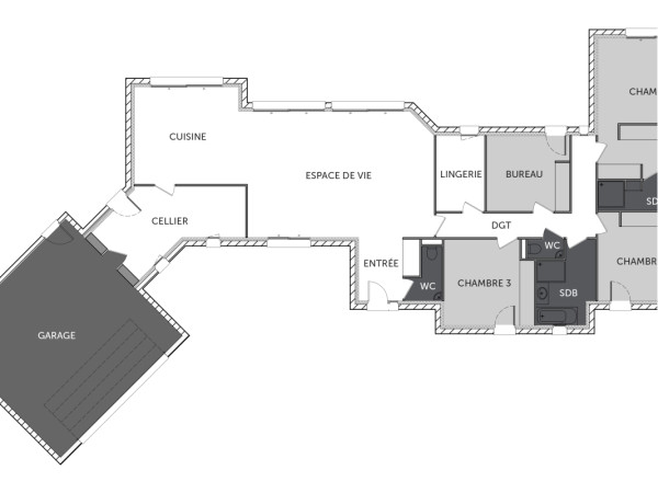
Un style affirmé, de grands volumes baignés de lumière et une organisation fluide : cette maison de plus de 170 m² a tout pour séduire. L’espace de vie central, spacieux et ouvert, devient le cœur vibrant de la maison. Côté nuit, trois chambres, un bureau pour le télétravail ou les projets perso, une salle de bain familiale… Et pour les parents : une superbe suite avec salle d’eau et dressing privatifs. Cellier, lingerie, grand garage de près de 48 m² : cette maison allie confort, modernité et modularité. Laissez libre cours à vos envies !

Pour un confort optimal et conforme à la RE2025, cette maison dispose d’une PAC AIR/AIR et volets roulants électriques.  À noter : Le prix indiqué exclut les revêtements de sol des chambres, la cuisine aménagée, la peinture, la décoration, les raccordements, les frais de notaire et l’assurance dommages-ouvrage. (Piscine non contractuelle, non comprise dans le prix)

173 m2

3 ch

2 salles de bain

2 garages

Nous contacter pour cette maison

Plan(s) de la maison VAIRE

Plan (maison 219)

Les + de la maison VAIRE

Mais au fait on parle, on parle, mais avez-vous pensé
à commencer votre projet ?

Visites virtuelles 360°

Découvrez nos visites virtuelles 360° HD et explorez l’intérieur de nos maisons modernes. Naviguez de pièce en pièce, appréciez les volumes, les aménagements et les finitions de chaque espace. Une expérience immersive qui vous permet d’imaginer votre future maison neuve, depuis chez vous.

Toutes les visites virtuelles
Visites virtuelles 360°
ME1739_Helsinky_Avant.jpg

Cette maison vous intéresse ?

Pour estimer le coût de construction de ce projet de maison, plus de renseignements ou prendre rendez-vous, remplissez le formulaire ci-dessous

Les champs marqués(*) sont obligatoires.