Offre spéciale

- 3 000€ sur vos frais de notaire

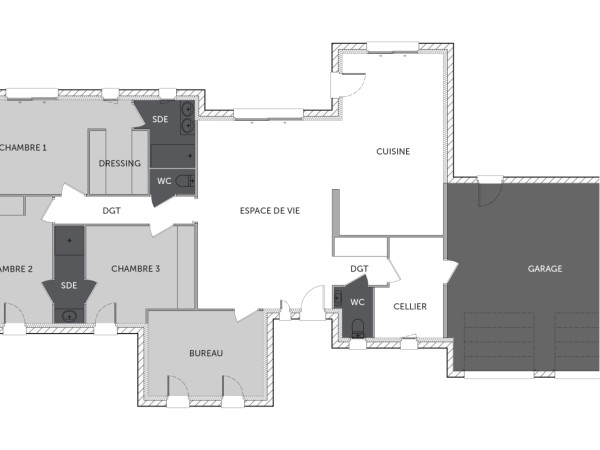
JARD maison de plain-pied de 4 chambres avec deux garages

Cette maison contient un grand espace nuit doté d'une suite parentale avec son somptueux dressing ainsi que sa salle d'eau, deux chambres avec salle d'eau communicante et un WC. Un grand espace de vie lumineux avec ses deux baies vitrées comportant une cuisine US donne accès à un spacieux bureau et à un WC séparé. Cette maison contient une grande capacité de rangements avec un grand garage ainsi qu'un cellier. Pour vous assurer un confort de vie et conformément à la RT2012, nous avons choisi un mode de chauffage par pompe à chaleur. Assurance DO et raccordements inclus, hors frais de notaire et décoration intérieure.

131 m2

4 ch

2 salles de bain

2 garages

Nous contacter pour cette maison

Plan(s) de la maison JARD

Plan (maison 139)

Les + de la maison JARD

Mais au fait on parle, on parle, mais avez-vous pensé
à commencer votre projet ?

Visites virtuelles 360°

Découvrez nos visites virtuelles 360° HD et explorez l’intérieur de nos maisons modernes. Naviguez de pièce en pièce, appréciez les volumes, les aménagements et les finitions de chaque espace. Une expérience immersive qui vous permet d’imaginer votre future maison neuve, depuis chez vous.

Toutes les visites virtuelles
Visites virtuelles 360°
ME1704LDV_JARD_Avant.jpg

Cette maison vous intéresse ?

Pour estimer le coût de construction de ce projet de maison, plus de renseignements ou prendre rendez-vous, remplissez le formulaire ci-dessous

Les champs marqués(*) sont obligatoires.