Offre spéciale

- 3 000€ sur vos frais de notaire

SAINT JULIEN maison de plain-pied de 3 chambres avec un garage

Une maison bien pensée, où chaque espace a sa place 

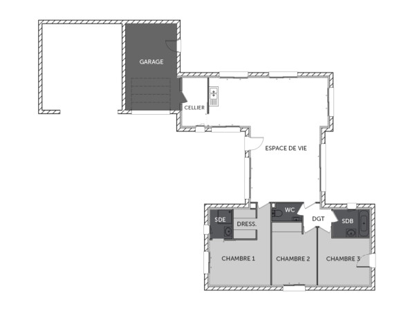
Avec ses 93 m² parfaitement optimisés, cette maison séduit par une configuration fonctionnelle et chaleureuse. Les trois chambres sont regroupées côté nuit, dont une avec dressing pour plus de confort, et deux pièces d’eau (salle de bain + salle d’eau) pour une vraie praticité au quotidien. L’espace de vie central, lumineux et ouvert sur l’extérieur, occupe une place généreuse au cœur de la maison. Un cellier malin, un WC indépendant et un garage complètent ce plan intelligent, pensé pour faciliter la vie de toute la famille. Un modèle compact, mais complet, à personnaliser selon vos envies.

Contactez-nous dès aujourd’hui pour concrétiser votre projet et façonner votre futur chez-vous !

94 m2

3 ch

2 salles de bain

1 garage

Nous contacter pour cette maison

Plan(s) de la maison SAINT JULIEN

Plan (maison 216)

Les + de la maison SAINT JULIEN

Mais au fait on parle, on parle, mais avez-vous pensé
à commencer votre projet ?

Visites virtuelles 360°

Découvrez nos visites virtuelles 360° HD et explorez l’intérieur de nos maisons modernes. Naviguez de pièce en pièce, appréciez les volumes, les aménagements et les finitions de chaque espace. Une expérience immersive qui vous permet d’imaginer votre future maison neuve, depuis chez vous.

Toutes les visites virtuelles
Visites virtuelles 360°
ME1740LDV_SAINT-JULIEN_Avant.jpg

Cette maison vous intéresse ?

Pour estimer le coût de construction de ce projet de maison, plus de renseignements ou prendre rendez-vous, remplissez le formulaire ci-dessous

Les champs marqués(*) sont obligatoires.