Offre spéciale

- 3 000€ sur vos frais de notaire

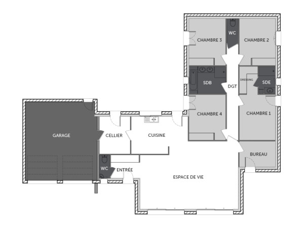
AVRILLE maison de plain-pied de 5 chambres avec deux garages

Tombez sous le charme de cette superbe maison de plain-pied de plus de 139 m², alliant élégance, volumes et confort absolu ! Son espace de vie de près de 58 m², sa cuisine ouverte, son cellier et ses 4 chambres offrent un cadre de vie exceptionnel. Elle dispose en plus d’un bureau indépendant, de deux salles d’eau, de 2 WC et d’un vaste garage de 35 m².
Un modèle fonctionnel, lumineux et 100 % personnalisable, parfait pour les familles exigeantes !

140 m2

5 ch

2 salles de bain

2 garages

Nous contacter pour cette maison

Plan(s) de la maison AVRILLE

Plan (maison 135)

Les + de la maison AVRILLE

Mais au fait on parle, on parle, mais avez-vous pensé
à commencer votre projet ?

Visites virtuelles 360°

Découvrez nos visites virtuelles 360° HD et explorez l’intérieur de nos maisons modernes. Naviguez de pièce en pièce, appréciez les volumes, les aménagements et les finitions de chaque espace. Une expérience immersive qui vous permet d’imaginer votre future maison neuve, depuis chez vous.

Toutes les visites virtuelles
Visites virtuelles 360°
ME1702LDV_AVRILLE_Avant.jpg

Cette maison vous intéresse ?

Pour estimer le coût de construction de ce projet de maison, plus de renseignements ou prendre rendez-vous, remplissez le formulaire ci-dessous

Les champs marqués(*) sont obligatoires.