Offre spéciale

- 3 000€ sur vos frais de notaire

OLONNE maison de plain-pied de 3 chambres avec un garage

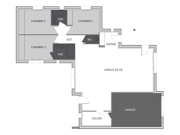
Cette maison en V saura vous séduire par son plan astucieux qui d'un côté vous offre un espace de vie très lumineux de plus de 50 m² avec cuisine ouverte, cellier et garage. De l'autre côté deux chambres bénéficiant d'un wc et d'une salle de bains commune, et une suite parentale avec sa salle d'eau privative. Pour vous assurer un confort de vie et conformément à la RE2025, nous avons choisi un mode de chauffage par PAC AIR/AIR. Prix hors décoration, frais de notaire, raccordements, dommage ouvrage.

105 m2

3 ch

2 salles de bain

1 garage

Nous contacter pour cette maison

Plan(s) de la maison OLONNE

Plan (maison 132)

Les + de la maison OLONNE

Mais au fait on parle, on parle, mais avez-vous pensé
à commencer votre projet ?

Visites virtuelles 360°

Découvrez nos visites virtuelles 360° HD et explorez l’intérieur de nos maisons modernes. Naviguez de pièce en pièce, appréciez les volumes, les aménagements et les finitions de chaque espace. Une expérience immersive qui vous permet d’imaginer votre future maison neuve, depuis chez vous.

Toutes les visites virtuelles
Visites virtuelles 360°
ME1785C_VEGA_Avant.png

Cette maison vous intéresse ?

Pour estimer le coût de construction de ce projet de maison, plus de renseignements ou prendre rendez-vous, remplissez le formulaire ci-dessous

Les champs marqués(*) sont obligatoires.