Offre spéciale

- 3 000€ sur vos frais de notaire

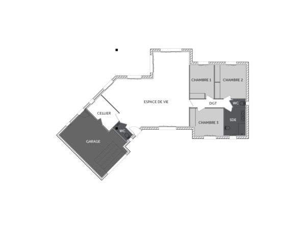
SAINT VINCENT maison de plain-pied de 3 chambres avec un garage

Un plan qui sort du cadre, une ambiance lumineuse et un vrai caractère : cette maison de plain-pied en angle a tout pour plaire.
L’espace de vie central, baigné de lumière naturelle, crée une vraie dynamique entre cuisine, salon et extérieur. Les 3 chambres sont bien séparées, pour offrir calme et intimité, tandis que la salle d’eau moderne, le cellier pratique et le garage intégré complètent un ensemble parfaitement pensé.
Un modèle modulable et stylé, qui s’adapte à toutes les envies de vie : premier achat malin ou refuge secondaire de charme.

117 m2

3 ch

1 salle de bain

1 garage

Nous contacter pour cette maison

Plan(s) de la maison SAINT VINCENT

Plan (maison 217)

Les + de la maison SAINT VINCENT

Mais au fait on parle, on parle, mais avez-vous pensé
à commencer votre projet ?

Visites virtuelles 360°

Découvrez nos visites virtuelles 360° HD et explorez l’intérieur de nos maisons modernes. Naviguez de pièce en pièce, appréciez les volumes, les aménagements et les finitions de chaque espace. Une expérience immersive qui vous permet d’imaginer votre future maison neuve, depuis chez vous.

Toutes les visites virtuelles
Visites virtuelles 360°
Maison

Cette maison vous intéresse ?

Pour estimer le coût de construction de ce projet de maison, plus de renseignements ou prendre rendez-vous, remplissez le formulaire ci-dessous

Les champs marqués(*) sont obligatoires.