Offre spéciale

- 3 000€ sur vos frais de notaire

VENANSAULT maison de plain-pied de 3 chambres avec un garage

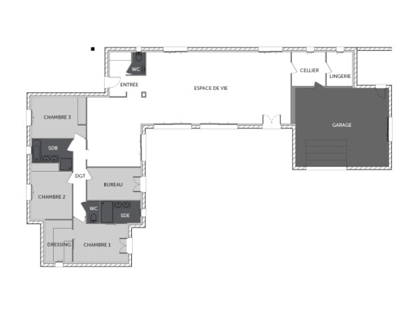
Conçue sur la base d'une forme en « U », cette maison profite d'une terrasse intime, protégée des regards. Côté jour, le plan se compose d'une entrée avec son vestibule, d'une salle de billard ou d'un salon, d'un vaste séjour séparé de la cuisine par une double porte à galandage, d'une lingerie ainsi que d'un cellier communiquant vers le grand garage et son atelier. Côté nuit, le plan propose un bureau, deux chambres et une salle-de-bain ainsi qu'une suite parentale. Pour vous assurer un confort de vie et conformément à la RT2012, nous avons choisi un mode de chauffage par pompe à chaleur. Assurance DO et raccordements inclus, hors frais de notaire et décoration intérieure.

165 m2

3 ch

2 salles de bain

1 garage

Nous contacter pour cette maison

Plan(s) de la maison VENANSAULT

Plan (maison 220)

Les + de la maison VENANSAULT

Mais au fait on parle, on parle, mais avez-vous pensé
à commencer votre projet ?

Visites virtuelles 360°

Découvrez nos visites virtuelles 360° HD et explorez l’intérieur de nos maisons modernes. Naviguez de pièce en pièce, appréciez les volumes, les aménagements et les finitions de chaque espace. Une expérience immersive qui vous permet d’imaginer votre future maison neuve, depuis chez vous.

Toutes les visites virtuelles
Visites virtuelles 360°
ME1781LDV_VENANSAULT_Arriere.jpg

Cette maison vous intéresse ?

Pour estimer le coût de construction de ce projet de maison, plus de renseignements ou prendre rendez-vous, remplissez le formulaire ci-dessous

Les champs marqués(*) sont obligatoires.