Offre spéciale

- 3 000€ sur vos frais de notaire

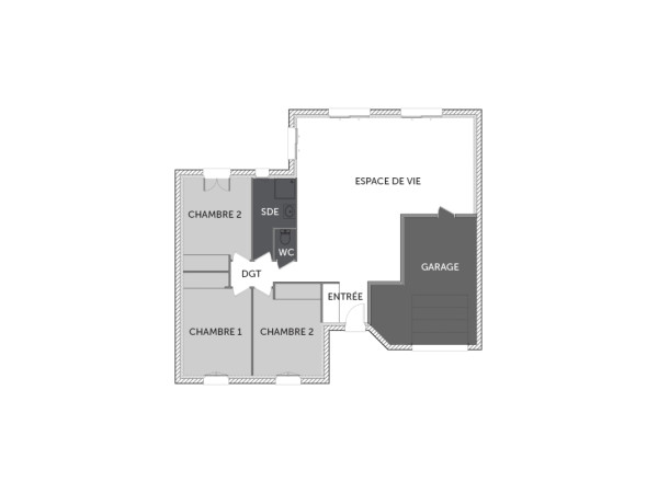
BRET maison de plain-pied de 3 chambres avec un garage

Avec son architecture en L, cette maison de plain-pied séduit par son style moderne et sa disposition astucieuse. La pièce de vie baignée de lumière s’ouvre vers l’extérieur, tandis que les 3 chambres assurent confort et intimité au quotidien. Le garage intégré et le cellier attenant facilitent l’organisation tout en préservant l’esthétique des volumes.
Un modèle fonctionnel, chaleureux et personnalisable, pensé pour une vie douce et bien organisée.

90 m2

3 ch

1 salle de bain

1 garage

Nous contacter pour cette maison

Plan(s) de la maison BRET

Plan (maison 105)

Les + de la maison BRET

Mais au fait on parle, on parle, mais avez-vous pensé
à commencer votre projet ?

Visites virtuelles 360°

Découvrez nos visites virtuelles 360° HD et explorez l’intérieur de nos maisons modernes. Naviguez de pièce en pièce, appréciez les volumes, les aménagements et les finitions de chaque espace. Une expérience immersive qui vous permet d’imaginer votre future maison neuve, depuis chez vous.

Toutes les visites virtuelles
Visites virtuelles 360°
Maison

Cette maison vous intéresse ?

Pour estimer le coût de construction de ce projet de maison, plus de renseignements ou prendre rendez-vous, remplissez le formulaire ci-dessous

Les champs marqués(*) sont obligatoires.