Offre spéciale

- 3 000€ sur vos frais de notaire

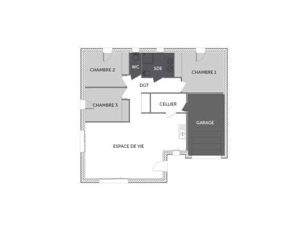
SAINT HILAIRE maison de plain-pied de 3 chambres avec un garage

Une maison de plain-pied entièrement pensée pour l’accessibilité, sans compromis sur le confort ni sur le style.
Circulations fluides, pièces spacieuses, seuils de porte abaissés, et volumes optimisés : ici, chaque espace est conçu pour une accessibilité totale, en fauteuil comme à la marche.
La pièce de vie ouverte et lumineuse, les 3 chambres confortables, la salle d’eau accessible, le cellier et le garage attenant offrent un cadre de vie autonome, pratique et sécurisé.
Ce modèle s’adresse aux personnes à mobilité réduite souhaitant vivre pleinement chez elles, dans une maison fonctionnelle, évolutive et personnalisable, adaptée à toutes les étapes de la vie.

87 m2

3 ch

1 salle de bain

1 garage

Nous contacter pour cette maison

Plan(s) de la maison SAINT HILAIRE

Plan (maison 114)

Les + de la maison SAINT HILAIRE

Mais au fait on parle, on parle, mais avez-vous pensé
à commencer votre projet ?

Visites virtuelles 360°

Découvrez nos visites virtuelles 360° HD et explorez l’intérieur de nos maisons modernes. Naviguez de pièce en pièce, appréciez les volumes, les aménagements et les finitions de chaque espace. Une expérience immersive qui vous permet d’imaginer votre future maison neuve, depuis chez vous.

Toutes les visites virtuelles
Visites virtuelles 360°
PA1743LDV_SAINT_HILAIRE_Avant.jpg

Cette maison vous intéresse ?

Pour estimer le coût de construction de ce projet de maison, plus de renseignements ou prendre rendez-vous, remplissez le formulaire ci-dessous

Les champs marqués(*) sont obligatoires.