Offre spéciale

- 3 000€ sur vos frais de notaire

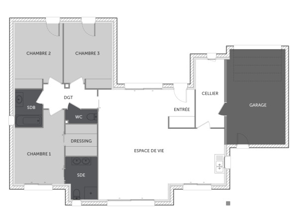
CHALLANS maison de plain-pied de 3 chambres avec un garage

Équilibre parfait entre confort et fonctionnalité !

Ce modèle séduit par sa conception sobre et efficace : une maison où l’on circule naturellement, où chaque espace trouve sa juste place. Le cœur du projet ? Une belle pièce de vie traversante, parfaite pour profiter de la lumière au fil des saisons. Trois chambres confortables, dont une suite avec dressing et salle d’eau, assurent une organisation fluide du coin nuit. Le cellier, connecté à la cuisine, et le garage attenant, apportent la touche pratique au quotidien. Un plan harmonieux, pensé pour s’adapter à votre rythme de vie.

Pour un confort optimal et conforme à la RE2025, cette maison dispose d’une PAC AIR/AIR et volets roulants électriques.  À noter : Le prix indiqué exclut les revêtements de sol des chambres, la cuisine aménagée, la peinture, la décoration, les raccordements, les frais de notaire et l’assurance dommages-ouvrage
 

111 m2

3 ch

1 salle de bain

1 garage

Nous contacter pour cette maison

Plan(s) de la maison CHALLANS

Plan (maison 124)

Les + de la maison CHALLANS

Mais au fait on parle, on parle, mais avez-vous pensé
à commencer votre projet ?

Visites virtuelles 360°

Découvrez nos visites virtuelles 360° HD et explorez l’intérieur de nos maisons modernes. Naviguez de pièce en pièce, appréciez les volumes, les aménagements et les finitions de chaque espace. Une expérience immersive qui vous permet d’imaginer votre future maison neuve, depuis chez vous.

Toutes les visites virtuelles
Visites virtuelles 360°
ME1745LDV_CHALLANS_Avant.jpg

Cette maison vous intéresse ?

Pour estimer le coût de construction de ce projet de maison, plus de renseignements ou prendre rendez-vous, remplissez le formulaire ci-dessous

Les champs marqués(*) sont obligatoires.