Offre spéciale

- 3 000€ sur vos frais de notaire

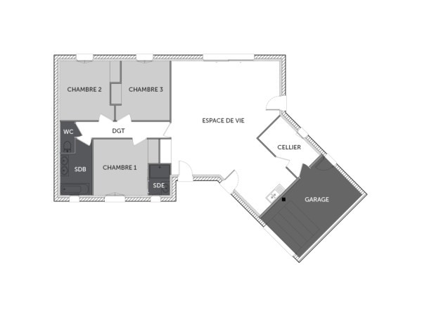
COMMEQUIERS maison de plain-pied de 3 chambres avec un garage

Un agencement bien pensé, une ambiance chaleureuse, et la promesse d’un quotidien facile à vivre.
Cette maison de plain-pied séduit par sa pièce de vie lumineuse au cœur du logement, parfaite pour se retrouver en famille ou entre amis. Elle offre 3 chambres confortables, une salle de bain, une salle d’eau et un garage intégré avec cellier attenant pour un maximum de praticité. Modulable et personnalisable selon vos envies, ce modèle est une belle base pour créer une maison à votre image, fonctionnelle et accueillante.

 

 

101 m2

3 ch

1 salle de bain

1 garage

Nous contacter pour cette maison

Plan(s) de la maison COMMEQUIERS

Plan (maison 126)

Les + de la maison COMMEQUIERS

Mais au fait on parle, on parle, mais avez-vous pensé
à commencer votre projet ?

Visites virtuelles 360°

Découvrez nos visites virtuelles 360° HD et explorez l’intérieur de nos maisons modernes. Naviguez de pièce en pièce, appréciez les volumes, les aménagements et les finitions de chaque espace. Une expérience immersive qui vous permet d’imaginer votre future maison neuve, depuis chez vous.

Toutes les visites virtuelles
Visites virtuelles 360°
Maison

Cette maison vous intéresse ?

Pour estimer le coût de construction de ce projet de maison, plus de renseignements ou prendre rendez-vous, remplissez le formulaire ci-dessous

Les champs marqués(*) sont obligatoires.