Offre spéciale

- 3 000€ sur vos frais de notaire

GIVRAND maison à étage de 4 chambres avec un garage

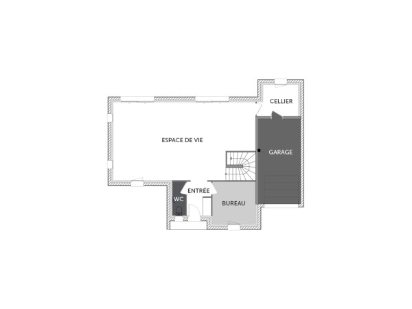
Cette maison à étage saura vous séduire par sa clarté et ses volumes. Composée au rez-de-chaussée d'un très bel espace de vie lumineux grâce à ses deux vitrées, une cuisine ouverte avec un accès direct au cellier et garage et un bureau que vous transformerez au gré de vos envies en chambre d'ami ou en salle de jeux pour les enfants. A l'étage, un dégagement dessert trois chambres avec placard, une salle de bains avec vasque, douche et baignoire. Pour vous assurer un confort de vie et conformément à la RT2012, nous avons choisi un mode de chauffage par pompe à chaleur. Assurance DO et raccordements inclus, hors frais de notaire et décoration intérieure.

118 m2

4 ch

1 salle de bain

1 garage

Nous contacter pour cette maison

Plan(s) de la maison GIVRAND

Plan (maison 127)
Plan (maison 127)

Les + de la maison GIVRAND

Mais au fait on parle, on parle, mais avez-vous pensé
à commencer votre projet ?

Visites virtuelles 360°

Découvrez nos visites virtuelles 360° HD et explorez l’intérieur de nos maisons modernes. Naviguez de pièce en pièce, appréciez les volumes, les aménagements et les finitions de chaque espace. Une expérience immersive qui vous permet d’imaginer votre future maison neuve, depuis chez vous.

Toutes les visites virtuelles
Visites virtuelles 360°
Maison

Cette maison vous intéresse ?

Pour estimer le coût de construction de ce projet de maison, plus de renseignements ou prendre rendez-vous, remplissez le formulaire ci-dessous

Les champs marqués(*) sont obligatoires.