Offre spéciale

- 3 000€ sur vos frais de notaire

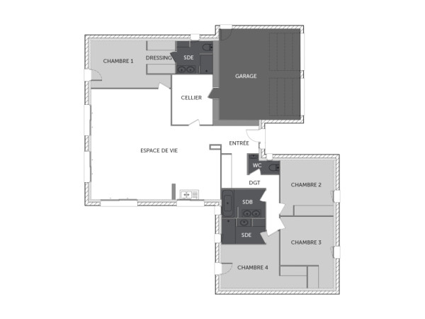
LES SABLES maison de plain-pied de 4 chambres avec deux garages

Une maison généreuse pour voir grand !

Pensée pour ceux qui aiment l’espace et l’équilibre, cette maison familiale offre une configuration remarquable. L’entrée s’ouvre sur une pièce de vie fluide et lumineuse, parfaite pour recevoir ou simplement profiter du quotidien. Le coin nuit accueille quatre chambres confortables, dont une suite parentale avec salle d’eau et dressing, bien séparée pour préserver l’intimité. Une salle de bain, un cellier malin, un grand garage… Chaque détail a été conçu pour conjuguer fonctionnalité et confort de vie. Un modèle à personnaliser, taillé pour accompagner tous vos projets de vie.

Pour un confort optimal et conforme à la RE2025, cette maison dispose d’une PAC AIR/AIR et volets roulants électriques.  À noter : Le prix indiqué exclut les revêtements de sol des chambres, la cuisine aménagée, la peinture, la décoration, les raccordements, les frais de notaire et l’assurance dommages-ouvrage. (Piscine non contractuelle, non comprise dans le prix)

141 m2

4 ch

2 salles de bain

2 garages

Nous contacter pour cette maison

Plan(s) de la maison LES SABLES

Plan (maison 130)

Les + de la maison LES SABLES

Mais au fait on parle, on parle, mais avez-vous pensé
à commencer votre projet ?

Visites virtuelles 360°

Découvrez nos visites virtuelles 360° HD et explorez l’intérieur de nos maisons modernes. Naviguez de pièce en pièce, appréciez les volumes, les aménagements et les finitions de chaque espace. Une expérience immersive qui vous permet d’imaginer votre future maison neuve, depuis chez vous.

Toutes les visites virtuelles
Visites virtuelles 360°
ME1752LDV_LES SABLES_Arriere.jpg

Cette maison vous intéresse ?

Pour estimer le coût de construction de ce projet de maison, plus de renseignements ou prendre rendez-vous, remplissez le formulaire ci-dessous

Les champs marqués(*) sont obligatoires.