Offre spéciale
- 3 000€ sur vos frais de notaire
Club Villadim
Maisons de Qualité
Avis Immodvisor
vos filtres
64 m2
1 ch
62 m2
2 ch
65 m2
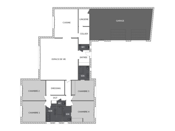
225 m2
4 ch
Maison RE2025
Depuis le 1er janvier 2025, les exigences environnementales pour les maisons neuves se sont renforcées.
76 m2
3 ch
49 m2
138 m2
Ce plan de maison vous inspire ?
Pour débuter votre projet, inspirez-vous de nos plans de maison en téléchargement.
Les champs marqués(*) sont obligatoires.